



Fertigbad Individual Typ I
Eine echte Alternative zur konventionellen Bauweise. Fertigbäder sind ideal für die Sanierung und Modernisierung von Altbauten wie Hotels, Pensionen, Wohnungen, Industriebauten, usw. Auch als Zusatzbad auf z.B. Campingplätzen eignet sich das Bad sehr gut.
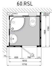
Fertigbad INDIVIDUAL Typ I
komplett und hochwertig eingerichtetes Fertigbad mit Viertelkreis-dusche, wandhängendem Keramik-WC und Porzellanwaschtisch; passend für die rechte oder linke Raumecke bei etwa quadratischem Grundriss.
Auch erhältlich als Fertigbad INDIVIDUAL Typ II mit schmalem, rechteckigem Grundriss; dann mit quadratischer Dusche.
Lieferzeit:
i.d.R. zwischen 8 und 10 Wochen nach Auftragseingang.
Maße (L x B x H)171 x 178 x 235 cm
- Korpus in Elementbauweise. Bodenteil, Wände und Decke durch normale Zimmertüren transportabel.
- Bodenteil ausgebildet als wasserdichte »Wanne« aus Vollkunststoff (PVC) mit umlaufender, 10 cm hoher Aufkantung. Wasserfester Vinylboden in Fliesenoptik.
- Sehr stabiler Wandaufbau aus OSB-Platten mit Installationsraum für Leitungen und Befestigungen.
- Innenwände aus 8 mm starken, hochwertigen Kunststoffplatten in weiß (RAL 9016).nWahlweise auch Innenwände mit Designober ächen.
- Stahltürzarge und Eingangstür mit Belüftungsgitter, Türschloss mit Besetztanzeige und 2 Kleiderhaken.nLichtschalter mit Kontrollleuchte außen neben der Eingangstür.
- Bewässerungsleitungen aus Kunststoff, Fabrikat: REHAU, bis zum Montageschacht vorgerichtet.
- Entwässerungsleitungen aus HT-Rohr, bis zum Montageschacht vorgerichtet.
- Beleuchtung mit 4 Stück LED-Strahlern in der Decke eingebaut.
- Das Elektro-Installationsmaterial gehört zum Lieferumfang.nVorrichtung für einen Entlüftungsanschluss DN 100.
- Mit 2 exiblen Anschlussschläuchen, Länge 1m, für den Kalt- und Warmwasseranschluss.
- Optional mit Außenverkleidungs-Set, bestehend aus Gipskarton-platten, Spachtelmasse und Schnellbauschrauben für eine tapezierfertige Oberfläche.
Beschreibung
Der Korpus mit Elementen ist in Leichtbauweise erstellt (niedriges Gewicht!). Wände, Boden, Decke und Eingangstür bestehen aus hochwertigem Vollkunststoff. Die Kabinenfarbe ist weiß, der Bodenbelag aus PVC.
Die weiße Eingangstür ist wasserfeste, aus hochwertigem Vollkunststoff, mit Belüftungsgitter, Türschloss inklusive Besetztanzeige und zwei Kleiderhaken.
Der Lichtschalter außen neben der Eingangstür ist mit einer Kontrollleuchte versehen.
Ausstattung und Inneneinrichtung
Inneneinrichtung WC-Bereich (WC)
- Keramik-WC, wandhängend
- Toilettensitz mit Deckel, Farbe weiß
- UP-Spülkasten mit Betätigungsplatte »Sigma 01«, Fabrikat GEBERIT
- Papierrollenhalter in Chrom
Inneneinrichtung Waschtischbereich (WT)
- Porzellanwaschtisch 55 x 43 cm, weiß
- Flaschensiphon, Eckventile und Ablauf in Chrom
- Verchromte Einhebelmischbatterie mit Keramikdichtscheiben
- Ablage aus Porzellan
- Kristallspiegel 60 x 80 cm
- Feuchtraumelektrosteckdose
- 2 Handtuchhaken und 1 Handtuchstange
Inneneinrichtung Duschbereich (DU)
- Duschwanne 80 x 80 cm (Viertelkreis bei Typ I) aus Acryl, weiß, Einstiegshöhe ca. 21 cm
- Duschwanne 90 x 90 cm bei Typ II
- Verchromte Einhebelmischbatterie mit Keramikdichtscheiben
- Brausegarnitur, Markenfabrikat, verchromt, inklusive Seifenschale
- Hochwertige Echtglas Schiebetür
Anschluss
Anschlussinformationen Website
Der Anschluss der Fertigbäder gibt es mehrere Möglichkeiten.
- Sie haben ab Aufstellort eine Verrohrung für Frisch-und Abwasser, die den Vorgaben vom Hersteller entsprechen, s. Zeichnung auf Nachfrage.
- Sie möchten den Aufstellort frei wählen und haben bisher keine Anschlüsse für Frisch-und Abwasser am Aufstellort. Mit einer optionalen Zerkleinerungspumpe/ Hebeanlage kann das Abwasser z.B. 20m zum nächsten Waschbeckenanschluss gepumpt werden. Förderhöhe z.B. 5m ins darüber liegende Geschoss. Durch die Zerkleinerung können alle Abwässer nach dem Ablauf eines Waschbeckenablaufs (nach dem Siphon) abgeführt/ angeschlossen werden. Wir beraten Sie hier gerne.
Die Frischwasserversorgung (mindestens Kaltwasser) kann auch mit Hilfe von Schläuchen über eine größere Entfernung hergestellt werden. So sparen Sie sich ggf. aufwändige Baumaßnahmen. Achten Sie hier auf wertige Schläuche, Trinkwassernorm, Hitzebeständigkeit. Schläuche erhalten Sie bei uns auf Nachfrage.
Folgende Anschlussinformationen zum Lieferumfang der Fertigbäder:
Bewässerungsleitungen aus Kunststoff, bis zum Montageschacht vorgerichtet
Entwässerungsleitungen aus HT-Rohr, bis zum Montageschacht vorgerichtet
Revisionsklappe zum Anschlussschacht
Elektroinstallation:
Das Material für die Elektroinstallation ist beigefügt Beleuchtung erfolgt durch Deckenstrahler
Elektroanschluss; die Verdrahtung der Kabel zu den jeweiligen Elektroteilen (Steckdosen, Lichtschalter, Lüfter, etc.) muss von einem ortsansässigen Installationsbetrieb vorgenommen werden.
Verteilerdose hinter Revisionsklappe oder auf dem Dach mögl.
Vorrichtung für einen Entlüftungsanschluss DN 100
Wasseranschluss:
zwei flexible Anschlussschläuche, 1 m lang, ¾“ x ½“ für den Kalt- und Warmwasseranschluss
zwei Blenden aus Vollkunststoff für die Wandverkleidung gehören zum Lieferumfang










